前言:近年國家在應對大氣污染,防治行動中對工業廢氣的排放提出了嚴格的要求,特別是對于工業生產中的有機廢氣含有VOCs的排放提出了必須要達標排放的措施,有機廢氣的排放污染問題更是已經影響到人們的生活環境。如今已明確,工業生產中不允許無組織廢氣的排放,為杜絕無組織排放,企業必須配置專業的環保凈化設備將無組織排放轉變成有組織排放,實現達標排放。TO為直燃式熱氧化爐(thermal oxidizer)是直接燃燒的廢氣焚燒處理設備,(簡稱TO爐)是利用輔助燃料燃燒所發生熱量,把可燃的有害廢氣VOCs的溫度提高到反應溫度,從而發生氧化分解的一種廢氣處理設備。
TO廢氣焚燒爐是防止工業有害揮發性VOCs氣體進入大氣而造成環境污染的有效焚燒裝置。在工業生產過程中,將這些VOCS廢氣收集起來,送入到TO廢氣焚燒爐中焚燒,將有害氣體氧化分解成 H2O 和CO2后再進行排放,這樣就不會污染環境了。保護環境的問題已經越來越受到社會各界人士的重視。VOCs有機物的徹底氧化分解的條件(包含苯酚等含苯環化合物)是焚燒氧化溫度要達到950℃以上。因此,要使送入廢氣焚燒爐中的廢氣燃燒后排放的尾氣不污染環境,廢氣焚燒爐的燃燒溫度必須達到950℃。通常,TO廢氣焚燒爐是天然氣為燃料。送入焚燒爐的廢氣在上述燃料的火焰中燃燒、氧化分解。

TO直燃式廢氣焚燒爐的焚燒方法是一種高溫熱處理技術,即以一定的焚燒燃料與被處理的有機廢氣在焚燒爐內進行氧化燃燒反應,廢氣中的有害有毒介質在高溫下氧化、熱解而被破壞,是一種可同時實現廢氣無害化、減量化、資源化的處理技術。主要目的是盡可能使被焚燒的廢氣變為無害和大限度地減容,并盡量減少新的污染物質產生,避免造成二次污染。
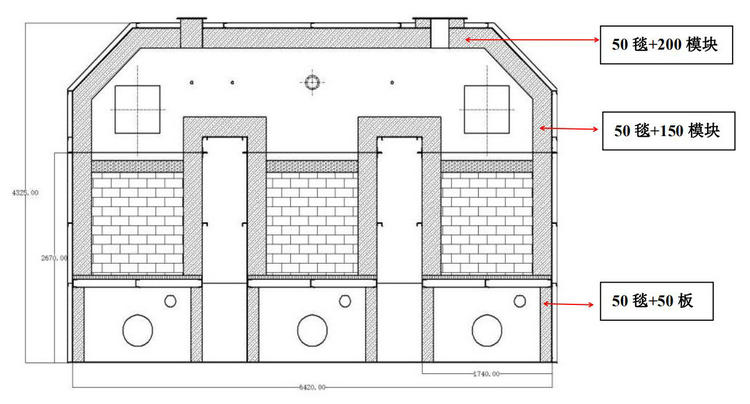
爐本體為L形圓柱狀,可分為立式和臥式兩段連接爐,爐殼為碳鋼材質。內部是由耐火材料、保溫材料、絕熱材料砌筑在爐體內,耐火材料砌筑要做到防煙氣泄漏并使爐本體表面溫度小于60℃。并且TO直燃式廢氣焚燒爐對爐體耐火材料的要求也要達①保證在爐內可燃燒分解VOCs的環境溫度中,耐火材料不能因為廢氣中的烴類、硫化物、氨類等腐蝕性介質產生的酸性侵蝕而造成損毀破壞 ②耐火材料在正常使用過程中不能發生脫落掉磚,并能保證傳導到爐殼外壁溫度低于60℃。
介于對TO爐內襯耐火材料的使用要求,我公司結合以往在類似爐型上所用耐火材料的經驗,總結了一套具有可實現降低爐殼溫度在60℃以下的砌筑方法,改變以往使用高鋁磚砌筑方法中的缺陷。以近期我公司所承接業務中一臺φ為2.4m的TO直燃式廢氣焚燒爐的耐火材料砌筑為例(附圖1)該砌筑工藝選用新型砌筑方法。